Splitski rišpet d.o.o.(Objektiv nekretnine)

Slične nekretnine

NOVO U PONUDI! SEGET VRANJICA, VILLA S BAZENOM (U IZGRADNJI)

SEGET VRANJICA , SEGET

720.000 €

Opis nekretnine

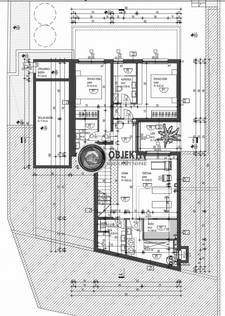
SEGET VRANJICA, VILLA S BAZENOM. OTVOREN POGLED NA MORE! Prodaje se villa s bazenom u izgradnji (s građevinskom dozvolom i plaćenim komunalijama) te završenim svim betonskim radovima, prvom fazom instalacija vode i kanalizacije, 1 fazom izrade pregrada od knaufa, ugrađenom bio jamom...cijena je 720.000,00 EUR (u ovoj fazi gradnje). Moguć dogovor oko završetka objekta. Projektirana stambena građevina ima suteren, prizemlje i 1 kat. Pravokutnog je razvedenog tlocrta. Ulaz u građevinu nalazi se na južnoj strani građevine, direktno s okolnog terena u razini prizemlja. U građevini se nalazi jedna stambena jedinica koja se proteže kroz 3 etaže (suteren, prizemlje i 1 kat) povezene jednokrakim stubištem. Na etaži suterena se nalaze dvije spavaće sobe, tri kupaonice, hodnik, fitness, sauna i praonica/kotlovnica. Na etaži prizemlja se nalaze ulazni prostor, garderoba, kupaonica, te kuhinja, blagovaonica i dnevni boravak. Na etaži 1. kata se nalaze hodnik, dvije spavaće sobe, garderoba i dvije kupaonice. Sa etaže 1. kata na jugozapadnoj neanatkrivenoj terasi postavljeno je montažno spiralno stubište za izlaz na ravni prohodni krov. Gotovo sve prostorije imaju prirodno osvjetljenje i provjetravanje, a prostorije bez prirodnog provjetravanja biti će ventilirane sustavom ventilacije. Sve glavne prostorije u građevini su prozorima / vratima otvorene na pripadajuće strane svijeta, i stan ima pripadajuće terase. Uz stambenu građevinu projektirana je pomoćna građevina – bazen, pozicioniran na zapadnoj strani čestice, te pomoćna građevina – ljetna kuhinja, pozicionirana na jugozapadnoj strani čestice. STAMBENA GRAĐEVINA (GBP do 400m2) S+P+1 Abrutto=121 m2 P parcele= 500 m2 1 stambena jedinica koja se proteže kroz 3 etaže ( suteren, prizemlje i 1 kat) povezene jednokrakim stubištem, površina GBP-a koja iznosi 274,36m2 . Projektirana je pomoćna građevina – bazen tlocrtne površine 21m2, smješten na zapadnom dijelu čestice, te pomoćna građevina - ljetna kuhinja tlocrtne površine 8m2, smještena na jugozapadnom dijelu čestice . Stambena građevina ima suteren, prizemlje i 1 kat. - suteren GBP = 113,22 m2 - prizemlje GBP = 87,22 m2 - 1. kat GBP = 73,92 m2 U privitku tlocrti. Za detaljnije informacije, kao i dogovor za obilazak nekretnine, kontaktirati agenta na mob: 099 698 54 74 ili 091 576 47 49 Splitski rišpet d.o.o. kao ovlašteni posrednik u prometu nekretnina od kupca naplaćuje posredničku naknadu sukladno Općim uvjetima poslovanja. Na razgledavanje nekretnine vodimo samo one kupce koji prihvaćaju navedene uvjete uz potpisani Ugovor o posredovanju.

Info

Površina objekta: 274 m2
Broj soba: 4

Lokacija